Un projet ? cliquez ici et partagez-nous vos envies
Retour aux modèles
Type de maison : Plain-pied

Maison individuelle de plain-pied en L

Ce modèle de maison individuelle de plain-pied en L vous séduira par son aménagement et son salon cosy donnant sur la loggia.

Déclinable sous tous les styles, qu’elle soit contemporaine, traditionnelle ou ultra-moderne cette maison est également personnalisable pour s’adapter aux particularismes régionaux (Provençal, Alpin, toit plat etc.)

Nous sommes à votre entière disposition pour toute étude (gratuite et sans engagement) pour l’adapter à votre terrain ou le personnaliser.

Laissez-vous inspirer !

MC9 (1) - maison en l - plan maison - modele maison - maison des compagnons - constructeur rhone alpes - maison biosourcée - plan maison gratuit - maison economie energie
MC9 - Surface habitable : 90m² / Annexes : 17m²
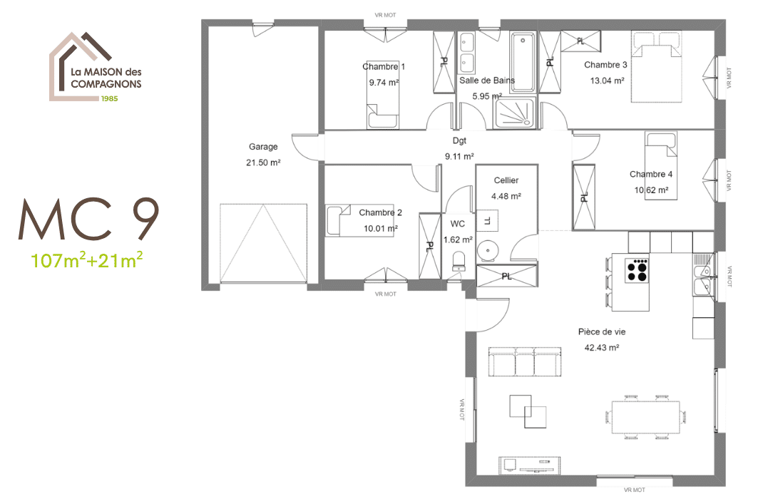
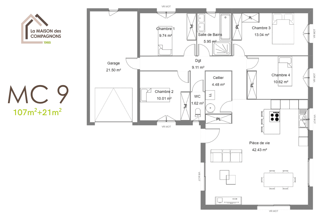
MC9 (3) - maison en l - plan maison - modele maison - maison des compagnons - constructeur rhone alpes - maison biosourcée - plan maison gratuit - maison economie energie
MC9 - Surface habitable : 107 m² / Annexes : 21 m²
MC9 (5) - maison en l - plan maison - modele maison - maison des compagnons - constructeur rhone alpes - maison biosourcée - plan maison gratuit - maison economie energie
MC9 - Surface habitable : 119 m² / Annexes : 20 m²

Et pourquoi pas une conception sur-mesure ?

Nos créations

Vous ne trouvez pas la maison de vos rêves parmi nos différents modèles ? Et pourquoi ne pas concevoir une maison 100% sur-mesure ?

La liberté de choisir avec la sécurité d’être guidé et accompagné : nous sommes à vos côtés pour écouter vos souhaits et les intégrer dans un projet personnalisé à votre image. Découvrez quelques exemples de nos créations personnalisées ainsi que les contraintes ou les souhaits exprimés par nos clients qui ont conduit à ces projets uniques. Et si c’était le vôtre que nous réalisions demain?

Notre site web a détecté que vous utilisez un navigateur obsolète, cela peut vous empêcher d'accéder à toutes les informations ce site. Nous vous conseillons d'utiliser un navigateur récent tel que :
Ne plus afficher
Fermer