Un projet ? cliquez ici et partagez-nous vos envies
Retour aux modèles
Type de maison : Plain-pied

Maison contemporaine de plain-pied en V

Ce modèle de maison contemporaine de plain-pied en V vous séduira par ses lignes modernes et sa structure qui lui confère un extérieur cosy. Vous profitez d’un jardin intimiste à aménager selon vos envies et d’une belle lumière pour votre intérieur.

Déclinable sous tous les styles, qu’elle soit contemporaine, traditionnelle ou ultra-moderne cette maison est également personnalisable pour s’adapter aux particularismes régionaux (Provençal, Alpin, etc.) et à vos besoins quotidiens.

Nous sommes à votre entière disposition pour toute étude (gratuite et sans engagement) pour adapter ce modèle à votre terrain ou le personnaliser.

Laissez-vous inspirer !

MC10 (5) - maison en v - modele maison - plan maison - construction maison - maison plain pied - maison plain pied moderne - maison clé en main - maison modele prix - constructeur de maison individuelle
MC10 - Surface habitable : 87m² / Garage : 20m²
MC10 (4) - maison en v - modele maison - plan maison - construction maison - maison plain pied - maison plain pied moderne - maison clé en main - maison modele prix - constructeur de maison individuelle
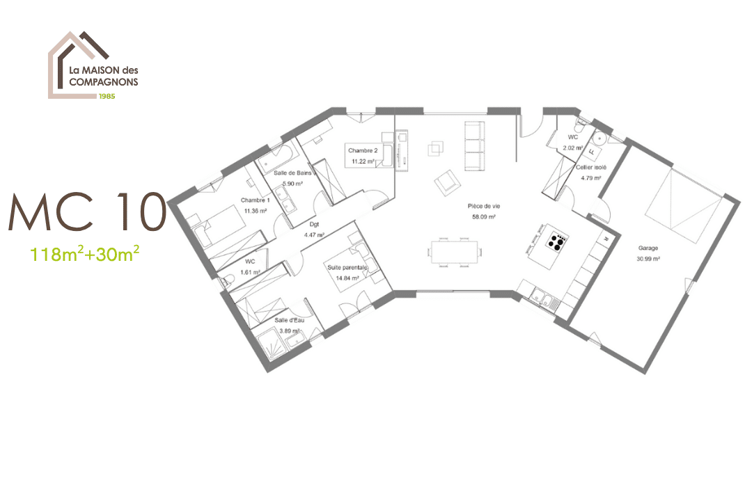
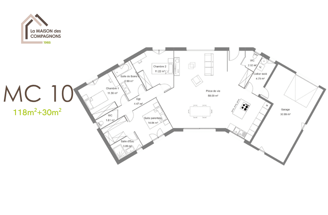
MC10 - Surface habitable : 118m² / Grand Garage : 30m²
MC10 (2) - maison en v - modele maison - plan maison - construction maison - maison plain pied - maison plain pied moderne - maison clé en main - maison modele prix - constructeur de maison individuelle
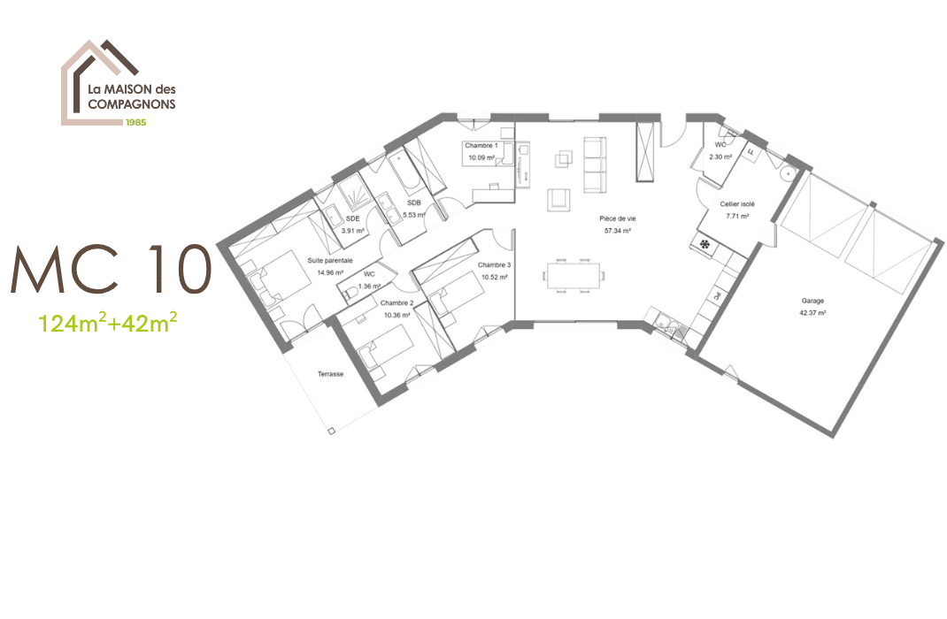
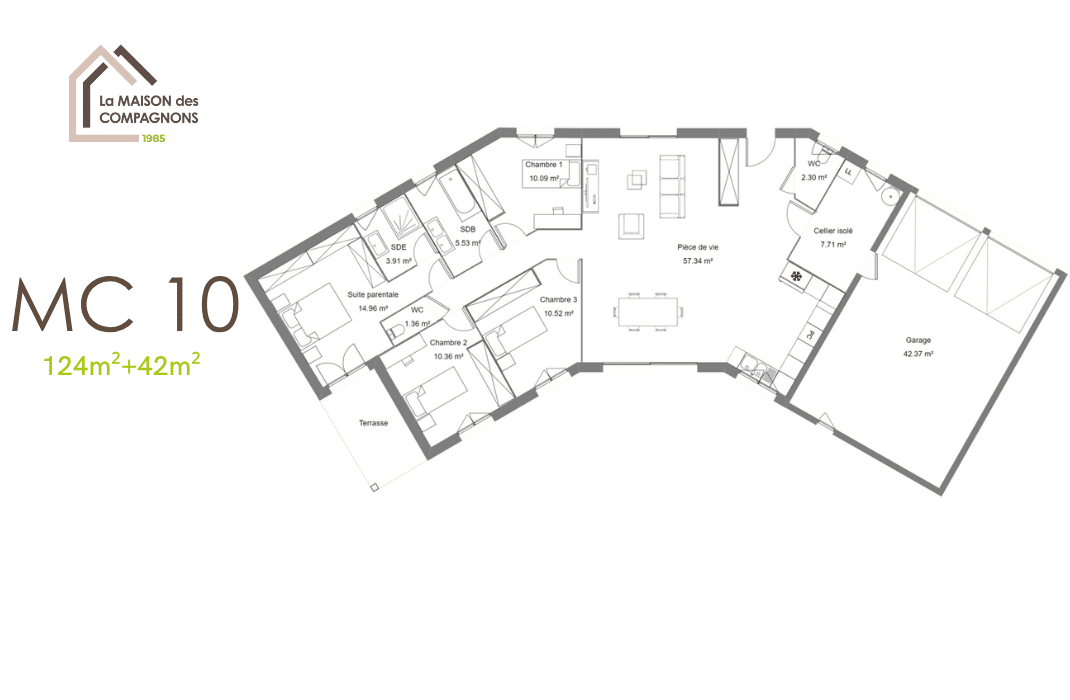
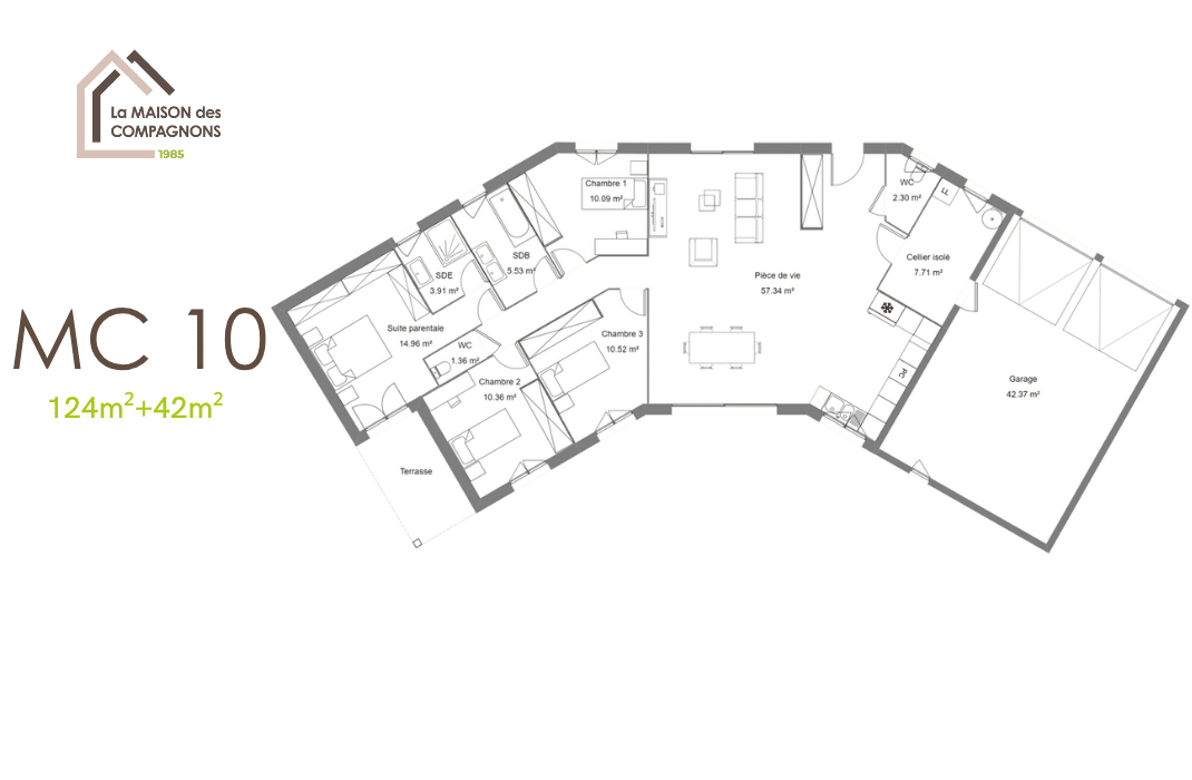
MC10- Surface habitable : 124m² / Double garage : 42m²

Et pourquoi pas une conception sur-mesure ?

Nos créations

Vous ne trouvez pas la maison de vos rêves parmi nos différents modèles ? Et pourquoi ne pas concevoir une maison 100% sur-mesure ?

La liberté de choisir avec la sécurité d’être guidé et accompagné : nous sommes à vos côtés pour écouter vos souhaits et les intégrer dans un projet personnalisé à votre image. Découvrez quelques exemples de nos créations personnalisées ainsi que les contraintes ou les souhaits exprimés par nos clients qui ont conduit à ces projets uniques. Et si c’était le vôtre que nous réalisions demain?

Notre site web a détecté que vous utilisez un navigateur obsolète, cela peut vous empêcher d'accéder à toutes les informations ce site. Nous vous conseillons d'utiliser un navigateur récent tel que :
Ne plus afficher
Fermer