Un projet ? cliquez ici et partagez-nous vos envies
Retour aux modèles
Type de maison : Plain-pied

Maison individuelle cubique de plain-pied

Ce modèle de maison individuelle cubique de plain-pied vous séduira par sa facilité d’agencement et son atout charme dans le salon : le bow window. La Maison des Compagnons maîtrise cette expertise depuis 1985.

Déclinable dans tous les styles, qu’elle soit contemporaine, traditionnelle ou ultra-moderne, cette maison est également personnalisable pour s’adapter aux particularismes régionaux (Provençal, Alpin, etc.)

Nous sommes à votre entière disposition pour toute étude (gratuite et sans engagement) pour adapter ce modèle à votre terrain ou le personnaliser.

Laissez-vous inspirer !

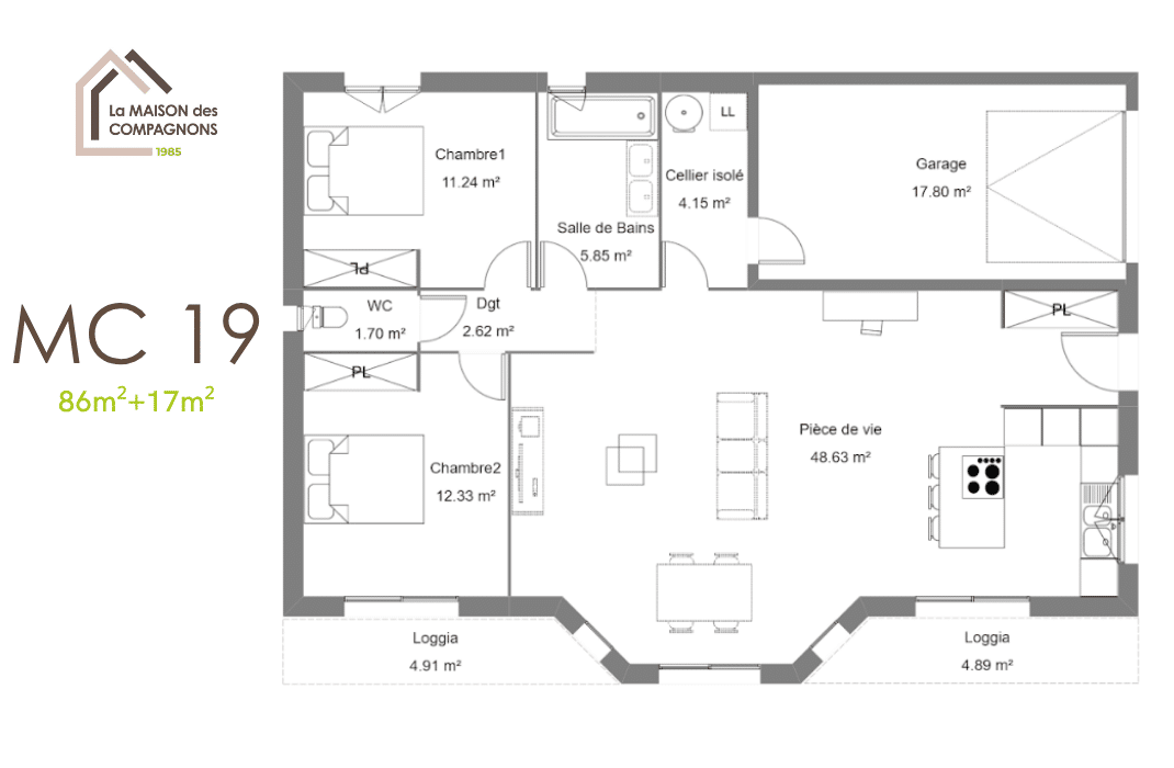
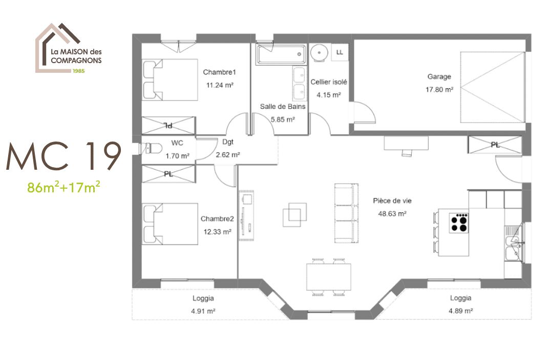
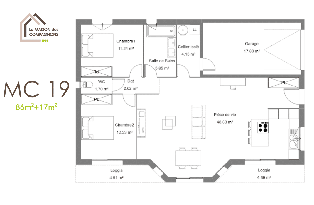
MC19 (1) - modele de maison - plan maison - maison des compagnons - constructeur maison - constructeur maison rhone alpes - maison biosourcée - maison plain pied - modele maison cubique
MC19 - Surface habitable : 86m² / Garage simple : 17m²
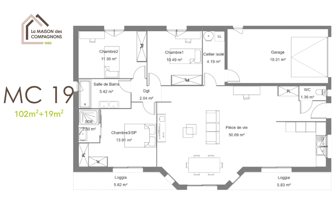
MC19 (3) - modele de maison - plan maison - maison des compagnons - constructeur maison - constructeur maison rhone alpes - maison biosourcée - maison plain pied - modele maison cubique
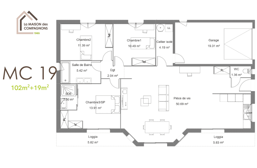
MC19 -Surface habitable avec suite parentale  : 102m² / Garage : 19m²
MC19 (5) - modele de maison - plan maison - maison des compagnons - constructeur maison - constructeur maison rhone alpes - maison biosourcée - maison plain pied - modele maison cubique
MC19 - Surface habitable avec 3 chambres, suite parentale : 119m² / Garage double : 64m²

Et pourquoi pas une conception sur-mesure ?

Nos créations

Vous ne trouvez pas la maison de vos rêves parmi nos différents modèles ? Et pourquoi ne pas concevoir une maison 100% sur-mesure ?

La liberté de choisir avec la sécurité d’être guidé et accompagné : nous sommes à vos côtés pour écouter vos souhaits et les intégrer dans un projet personnalisé à votre image. Découvrez quelques exemples de nos créations personnalisées ainsi que les contraintes ou les souhaits exprimés par nos clients qui ont conduit à ces projets uniques. Et si c’était le vôtre que nous réalisions demain?

Modèle de maison à étage construit par La Maison des Compagnons
Notre site web a détecté que vous utilisez un navigateur obsolète, cela peut vous empêcher d'accéder à toutes les informations ce site. Nous vous conseillons d'utiliser un navigateur récent tel que :
Ne plus afficher
Fermer