Un projet ? cliquez ici et partagez-nous vos envies
Retour aux modèles
Type de maison : Plain-pied

La maison plain-pied et son bow-window

 

Très originale, ce modèle de maison plain-pied se démarque avec son bow-window dont la verrière apporte la clarté à l’ensemble de la maison.

L’extérieur est sublimé par le décroché du bow-window dont le reflet intérieur donne un volume différent à la pièce de vie.

D’un autre côté les chambres avec baie vitrée et sa loggia, se partagent une salle de bain, un dressing et d’une salle d’eau privative.

Et de l’autre vous pouvez aménager votre garage avec un espace buanderie et un cellier selon vos envies.

La Maison des Compagnons propose et maîtrise le bow-window depuis de nombreuses années. Vous aussi vous souhaitez une maison contemporaine avec un bow-window ?  Nous sommes à votre entière disposition pour toute étude (gratuite et sans engagement) pour adapter ce modèle à votre terrain ou le personnaliser.

Galerie
Exemple de personnalisation
Personnalisation moderne

Laissez-vous inspirer !

MC12 (1) - modele maison - maison plain pied - constructeur maison - constructeur maison individuelle - plain maison - plan maison moderne - maison biosourcée - la maison des compagnons - construction maison neuve - maison individuelle - maison economie d'energie
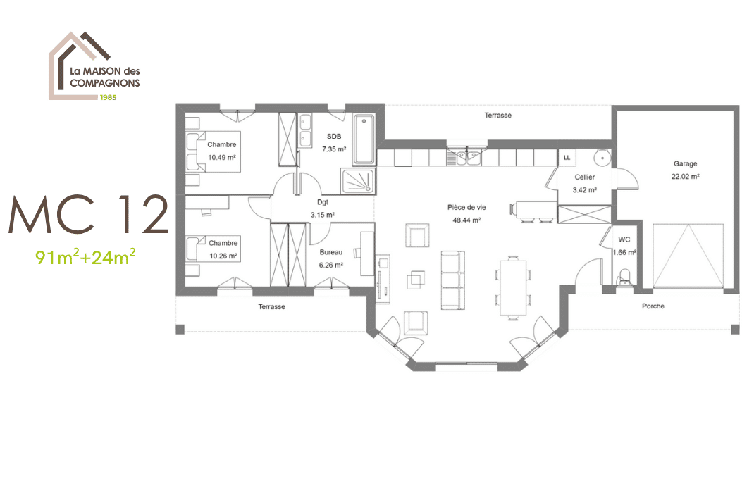
MC12 - Surface habitable : 91m² / Garages : 22m²
MC12 (3) - modele maison - maison plain pied - constructeur maison - constructeur maison individuelle - plain maison - plan maison moderne - maison biosourcée - la maison des compagnons - construction maison neuve - maison individuelle - maison economie d'energie
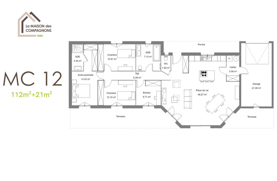
MC12 -Surface habitable avec suite parentale : 112 m² / Annexes : 21m²
MC12 (5) - modele maison - maison plain pied - constructeur maison - constructeur maison individuelle - plain maison - plan maison moderne - maison biosourcée - la maison des compagnons - construction maison neuve - maison individuelle - maison economie d'energie
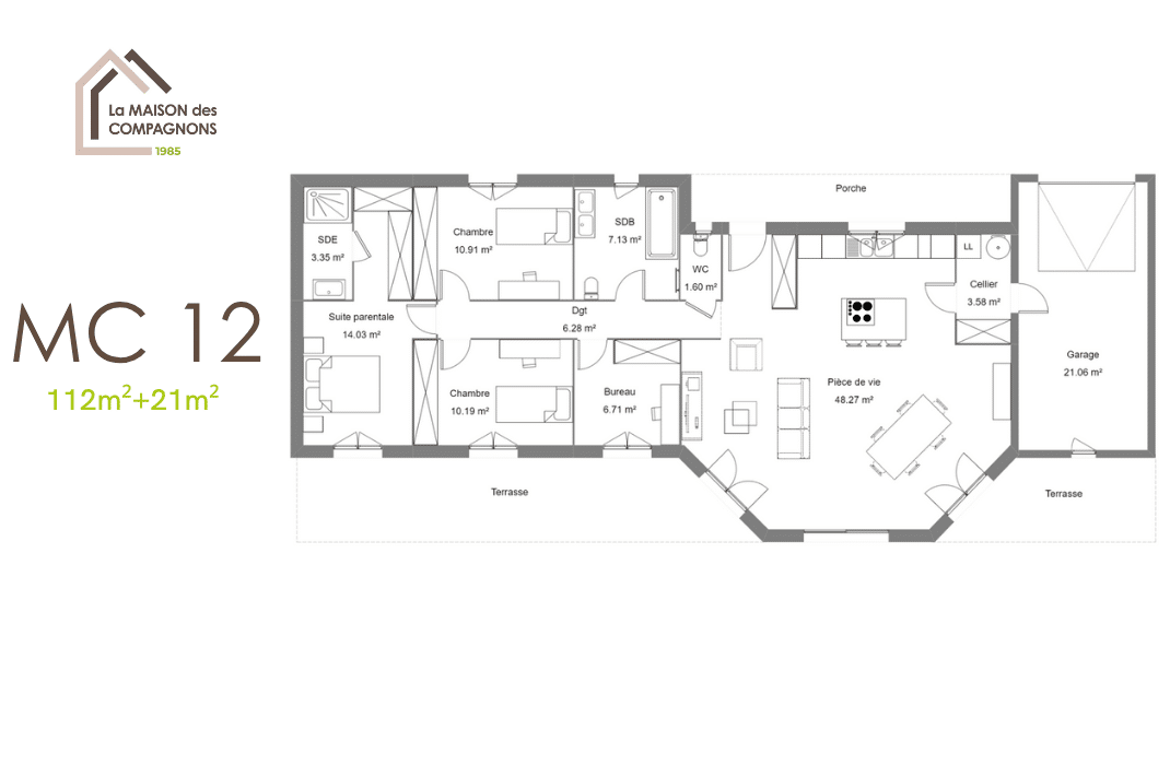
MC12 -Surface habitable avec suite parentale : 120 m² / Annexes : 24 m²

Et pourquoi pas une conception sur-mesure ?

Nos créations

Vous ne trouvez pas la maison de vos rêves parmi nos différents modèles ? Et pourquoi ne pas concevoir une maison 100% sur-mesure ?

La liberté de choisir avec la sécurité d’être guidé et accompagné : nous sommes à vos côtés pour écouter vos souhaits et les intégrer dans un projet personnalisé à votre image. Découvrez quelques exemples de nos créations personnalisées ainsi que les contraintes ou les souhaits exprimés par nos clients qui ont conduit à ces projets uniques. Et si c’était le vôtre que nous réalisions demain?

Maison en L moderne
Notre site web a détecté que vous utilisez un navigateur obsolète, cela peut vous empêcher d'accéder à toutes les informations ce site. Nous vous conseillons d'utiliser un navigateur récent tel que :
Ne plus afficher
Fermer