Un projet ? cliquez ici et partagez-nous vos envies
Retour aux modèles
Type de maison : Plain-pied

Une maison rectangulaire de plain-pied compacte et épurée

Ce modèle de maison rectangulaire de plain-pied MC1 vous séduira par sa simplicité d’agencement.

Déclinable sous tous les styles, qu’elle soit contemporaine, traditionnelle ou ultra-moderne cette maison est également personnalisable pour s’adapter aux particularismes régionaux (Provençal, Alpin, etc.). Nous adaptons nos plans en fonction de vos envies et besoin pour votre maison idéale.

Nous sommes à votre entière disposition pour toute étude (gratuite et sans engagement) pour l’adapter à votre terrain ou le personnaliser.

Laissez-vous inspirer par les plans de votre future maison !

MC1 (2) - maison plain pied - modele maison plain pied - plan maison plain pied - constructeur maison individuelle rhone alpes - construction maison - modele maison avec garage - la maison des compagnons
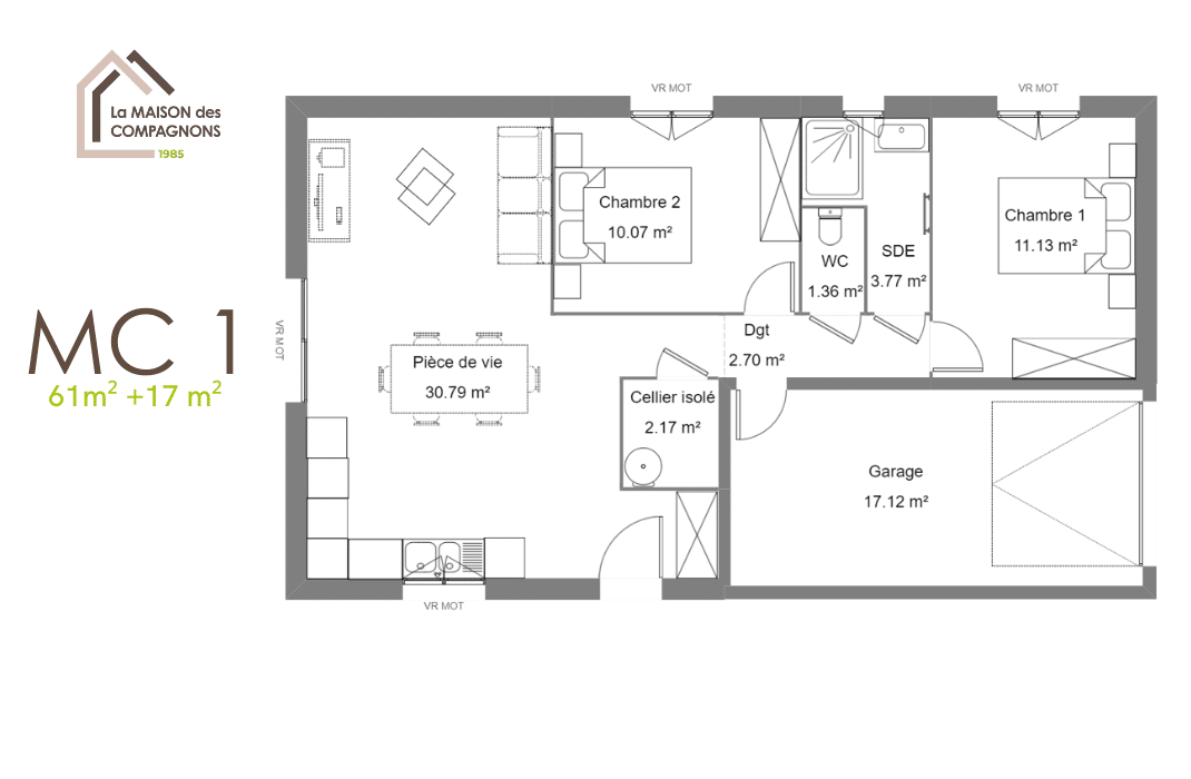
MC1 - Surface habitable : 61m² / Annexes : 17m²
- maison plain pied - modele maison plain pied - plan maison plain pied - constructeur maison individuelle rhone alpes - construction maison - modele maison avec garage - la maison des compagnons - mc1
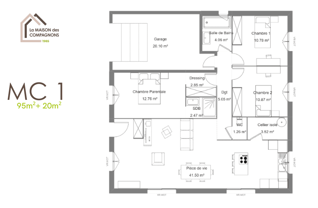
MC1 - Surface habitable : 95 m² / Annexes : 20 m²
MC1 (6) - maison plain pied - modele maison plain pied - plan maison plain pied - constructeur maison individuelle rhone alpes - construction maison - modele maison avec garage - la maison des compagnons
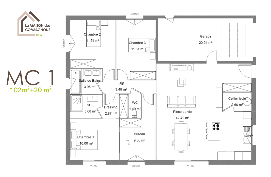
MC1 - Surface habitable : 102 m² / Annexes : 20 m²

Et pourquoi pas une conception sur-mesure ?

Nos créations

Vous ne trouvez pas la maison de vos rêves parmi nos différents modèles ? Et pourquoi ne pas concevoir une maison 100% sur-mesure ?

La liberté de choisir avec la sécurité d’être guidé et accompagné : nous sommes à vos côtés pour écouter vos souhaits et les intégrer dans un projet personnalisé à votre image. Découvrez quelques exemples de nos créations personnalisées ainsi que les contraintes ou les souhaits exprimés par nos clients qui ont conduit à ces projets uniques. Et si c’était le vôtre que nous réalisions demain?

Notre site web a détecté que vous utilisez un navigateur obsolète, cela peut vous empêcher d'accéder à toutes les informations ce site. Nous vous conseillons d'utiliser un navigateur récent tel que :
Ne plus afficher
Fermer