Un projet ? cliquez ici et partagez-nous vos envies
Retour aux modèles
Type de maison : Plain-pied

Maison cubique de plain-pied et sa loggia

Ce modèle de maison cubique de plain-pied et sa loggia vous séduira avec son originalité en toiture. Vous pourrez ainsi profiter de cet espace extérieur abrité selon vos envies.

Déclinable sous tous les styles, qu’elle soit contemporaine, traditionnelle ou ultra-moderne cette maison est également personnalisable pour s’adapter aux particularismes régionaux (Provençal, Alpin, etc.) mais aussi à vos besoins du quotidien. Ainsi, nous élaborons ensemble à partir de ce modèle, les plans de votre maison idéale.

Nous sommes à votre entière disposition pour toute étude (gratuite et sans engagement) pour l’adapter à votre terrain ou le personnaliser.

Laissez-vous inspirer !

MC7 (1) - maison avec terrasse - plan maison - modele maison - constructeur maison - maison des compagnons - maison biosourcée - maison écoresponsable - économie d'énergie
MC7 - Surface habitable : 78m² / pGarage : 18m²
MC7 (3) - maison avec terrasse - plan maison - modele maison - constructeur maison - maison des compagnons - maison biosourcée - maison écoresponsable - économie d'énergie
MC7 - Surface habitable : 95 m² / Garage : 20 m²
MC7 (4) - maison avec terrasse - plan maison - modele maison - constructeur maison - maison des compagnons - maison biosourcée - maison écoresponsable - économie d'énergie
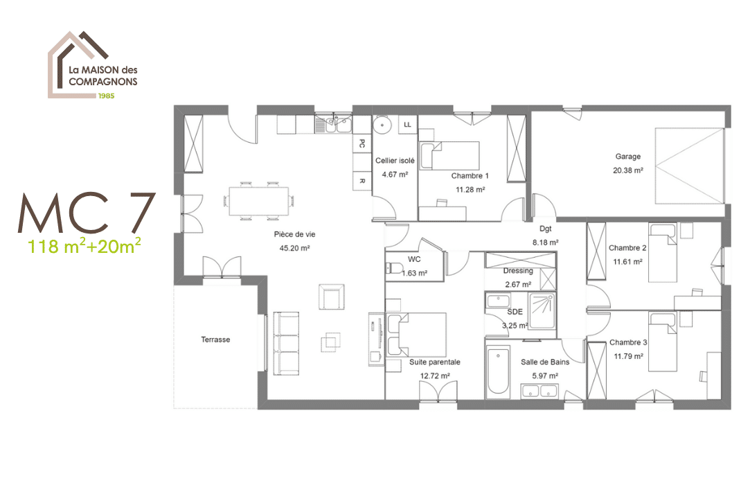
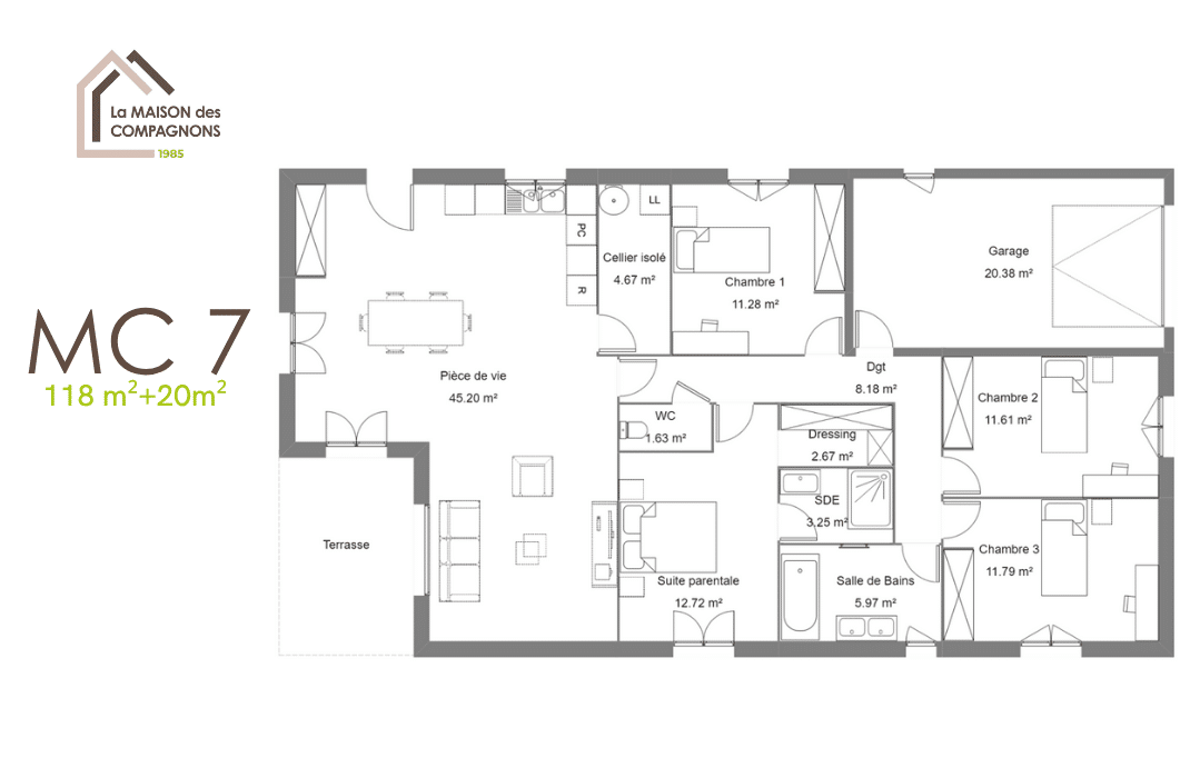
MC7 - Surface habitable : 118 m² avec suite parentale/ Garage : 20 m²

Et pourquoi pas une conception sur-mesure ?

Nos créations

Vous ne trouvez pas la maison de vos rêves parmi nos différents modèles ? Et pourquoi ne pas concevoir une maison 100% sur-mesure ?

La liberté de choisir avec la sécurité d’être guidé et accompagné : nous sommes à vos côtés pour écouter vos souhaits et les intégrer dans un projet personnalisé à votre image. Découvrez quelques exemples de nos créations personnalisées ainsi que les contraintes ou les souhaits exprimés par nos clients qui ont conduit à ces projets uniques. Et si c’était le vôtre que nous réalisions demain?

Notre site web a détecté que vous utilisez un navigateur obsolète, cela peut vous empêcher d'accéder à toutes les informations ce site. Nous vous conseillons d'utiliser un navigateur récent tel que :
Ne plus afficher
Fermer